Purnode - APPARTEMENTS

Situation

Un cadre paisible au cœur du Condroz

Situées dans le charmant village de Purnode, au sein de la commune de Yvoir, ces appartements profitent d’un environnement verdoyant et serein, typique du Condroz namurois.

Entre nature préservée et proximité des commodités, elles offrent un équilibre idéal entre tranquillité villageoise et qualité de vie moderne.

À quelques minutes seulement de Yvoir, Dinant ou Spontin, Purnode séduit par son authenticité, son relief boisé et son atmosphère conviviale — un lieu parfait pour s’installer durablement, en famille ou en couple.

1 salles de bain

1 buandrie

2 chambres

1 wc séparé

Description

Deux appartements lumineux à Purnode – Vue imprenable sur la campagne

Situés dans le charmant village de Purnode, au cœur de la commune de Yvoir, ces deux appartements neufsconjuguent confort moderneluminosité et douceur de vivre.

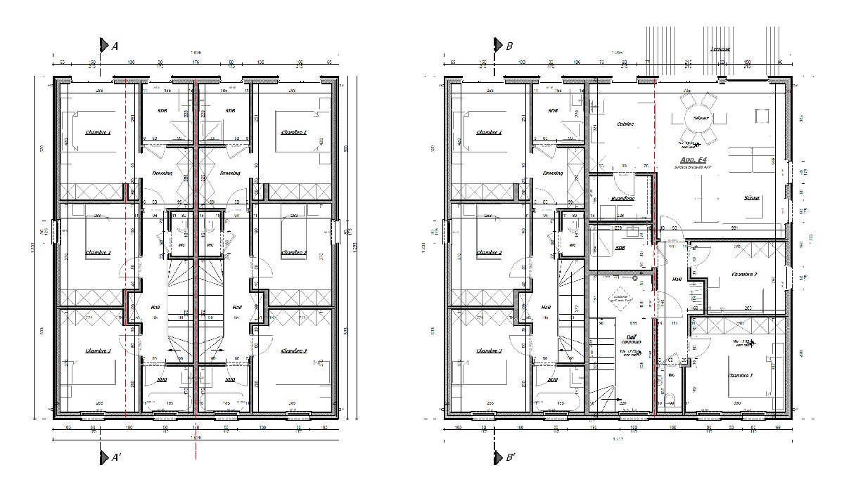
Dès le hall d’entrée, on découvre un espace soigneusement agencé comprenant :

  • un WC séparé,
  • deux chambres spacieuses,
  • un séjour ouvert sur la cuisine, baigné de lumière naturelle,
  • une buanderie fonctionnelle,
  • et une salle de bain élégante.

À l’arrière, la vue dégagée sur les campagnes offre un panorama apaisant et verdoyant, tandis qu’à l’avant, chaque appartement bénéficie d’un parking privatif pour un quotidien pratique et serein.

Un lieu de vie idéal pour ceux qui recherchent la tranquillité d’un cadre rural, tout en profitant du confort contemporain et du savoir-faire ImmoModul.

Description

Deux appartements lumineux à Purnode – Vue imprenable sur la campagne

Situés dans le charmant village de Purnode, au cœur de la commune de Yvoir, ces deux appartements neufsconjuguent confort moderneluminosité et douceur de vivre.

Dès le hall d’entrée, on découvre un espace soigneusement agencé comprenant :

  • un WC séparé,
  • deux chambres spacieuses,
  • un séjour ouvert sur la cuisine, baigné de lumière naturelle,
  • une buanderie fonctionnelle,
  • et une salle de bain élégante.

À l’arrière, la vue dégagée sur les campagnes offre un panorama apaisant et verdoyant, tandis qu’à l’avant, chaque appartement bénéficie d’un parking privatif pour un quotidien pratique et serein.

Un lieu de vie idéal pour ceux qui recherchent la tranquillité d’un cadre rural, tout en profitant du confort contemporain et du savoir-faire ImmoModul.

1 salles de bain

1 buandrie

2 chambres

1 wc séparé

Un projet, une question, une idée ?

Contactez-nous dès aujourd’hui.
Ches ImmoModul, nous sommes là pour vous guider vers la solution la plus adaptée.